餐饮厨具厂家告诉你如何规划厨房工作流程
发布人: 四川优佰特厨房设备公司 发布时间:2025.06.12
厨房工作流程的规划直接影响厨房餐具、人员、信息、废弃物的走向,以及厨房工作间的规划和厨房设备设施的规划。因此,做好厨房工作流程的规划对于设计整个商用厨房非常的重要。那么,应该怎么设计规划厨房工作流程呢?作为专业的餐饮厨具厂家,我们有多年的商用厨房工程施工和商用厨房设计经验,现在就和大家分享相关的经验。
作为专业的商用厨具厂家,我们认为,在规划商用厨房工作流程时,需要注意以下几个方面的知识点:
1.确定工作流程走向
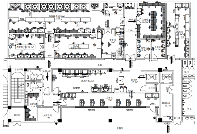
工作流程走向决定餐具、人员、信息、废弃物的走向。工作流程走向就是朝向出餐的方向。设计包含有形设计和无形设计,通道设计为有形设计,人流、物流、信息流为无形设计。
2.确定主通道的走向
按工艺流程走向确定主通道的走向,主通道的走向也就决定了各工作间工艺流程走向,加工后的原料、出餐的方向都要通向主通道,又由主通道以最短的距离通向餐厅。小厨房若没有走廊式的通道,则将传菜通道作为主通道,直接通向餐厅。
3.以主通道确定区域划分
以主通道贯穿厨房,连通其他工作间,并按工艺顺序确定其他工作间的位置。各工作间按库房、粗加工间、主副加工间、凉菜、备餐间、洗碗间、餐厅的工艺流程顺序布局,并与主通道连接顺畅。在有条件的厨房,应该把各种工作间分开,特别是主、副食、凉菜、洗碗、粗加工间要分开,把出餐与收残出入门和路径分开。只有位置关系合理通畅,才能保证出餐和收残的工作流程,减少无效劳动,提高工作效率。一般在厨房与餐厅交界处设出餐口、备餐间和洗碗间,其他工作间按主副食两大流程的相关关系就近设置。
4.根据流程路线设计分通道
根据主通道位置与走向,以及各种工作流程走向,初步确定区域隔断、进出门位置。各种工作流程有各自的路线,根据各行其道、不交叉、不回流、不穿越无关区域的原则,确定进料、出餐、收残、餐具、垃圾的流程分通道。为保证工作流程快捷高效,要缩短传送距离,截弯取直。较小的厨房若不能设分通道的厨房,也要利用运行路线、运行时间差,把不应交叉的流程区分开,要达到各行其道、不交叉、不回流、不穿越无关区域的要求。

5.要以出餐为主考虑工作流程
要以出餐的工艺流程为主,其他流程要为出餐让路,或错开时间。
6.确定传菜梯的位置
多层餐厅的厨房应该设有传菜梯。传菜梯在各层餐厅与厨房之间发挥重要作用,应该设在距离厨房主食、副食、凉菜都比较近的位置,也应是各楼层餐厅之间的中心枢纽位置。货梯要距进货口、库房与粗加工间较近,减少搬运距离。
7.确定工作流程路线
较大厨房的主通道、分通道为有形通道。而小厨房没有走廊,操作间距与传菜通道并用工作流程在无形通道中运行,各种工作流程运行路线仍然要遵循各行其道、不交叉、不回流、不穿越无关区域的原则。
以上就是规划设计商用厨房工作流和流程路线的方法,希望对大家有所帮助。
上一个产品:食堂厨房设备厂家教你确定厨房个工作间位置
下一个产品:食堂设施设备厂家告诉你厨房地板防滑怎么做
分享这个产品







